1. Cửa đi mở quay là gì?
Cửa đi mở quay PMA hệ Classic 58 bao gồm khung bao cố định với tường và cánh được liên kết với khung bao bởi bản lề mở quay.
Cửa mở quay tức là hệ cửa hoạt động theo nguyên ly mở ra hoặc mở vào và xoay trên trục bản lề. Đối với cửa nhôm, cửa mở được với góc 180 độ. Cửa đi mở quay là dạng cửa được thiết kế khi mở có các cánh cửa chia đều sang hai bên.
Quá trình lắp đặt cửa cần xác định vị trí góc mở, tâm điểm của cửa giữa để tạo sự hài hòa.
Cửa đi mở quay PMA hệ Classic 58 rãnh C châu Âu được sản xuất trên dây chuyền công nghệ hiện đại, quá trình đùn ép, gia công, xử lý bề mặt và được sử dụng bột sơn cao cấp của tập đoàn AkzoNobel bảo hành 15 năm lớp sơn phủ bề mặt cho tất cả các màu phổ biến và 10 năm với màu vân gỗ tự nhiên. Tất cả tạo ra bộ cửa chắc chắn, đẹp, có tính thẩm mỹ và độ bền cao.
2. Đặc điểm cửa đi mở quay hệ PMA Classic 58
Kích thước tiêu chuẩn hệ rãnh C nên dễ dàng sản xuất và thi công lắp đặt. Sử dụng chung phụ kiện đồng bộ hệ rãnh C trên thị trường tối ưu chi phí.
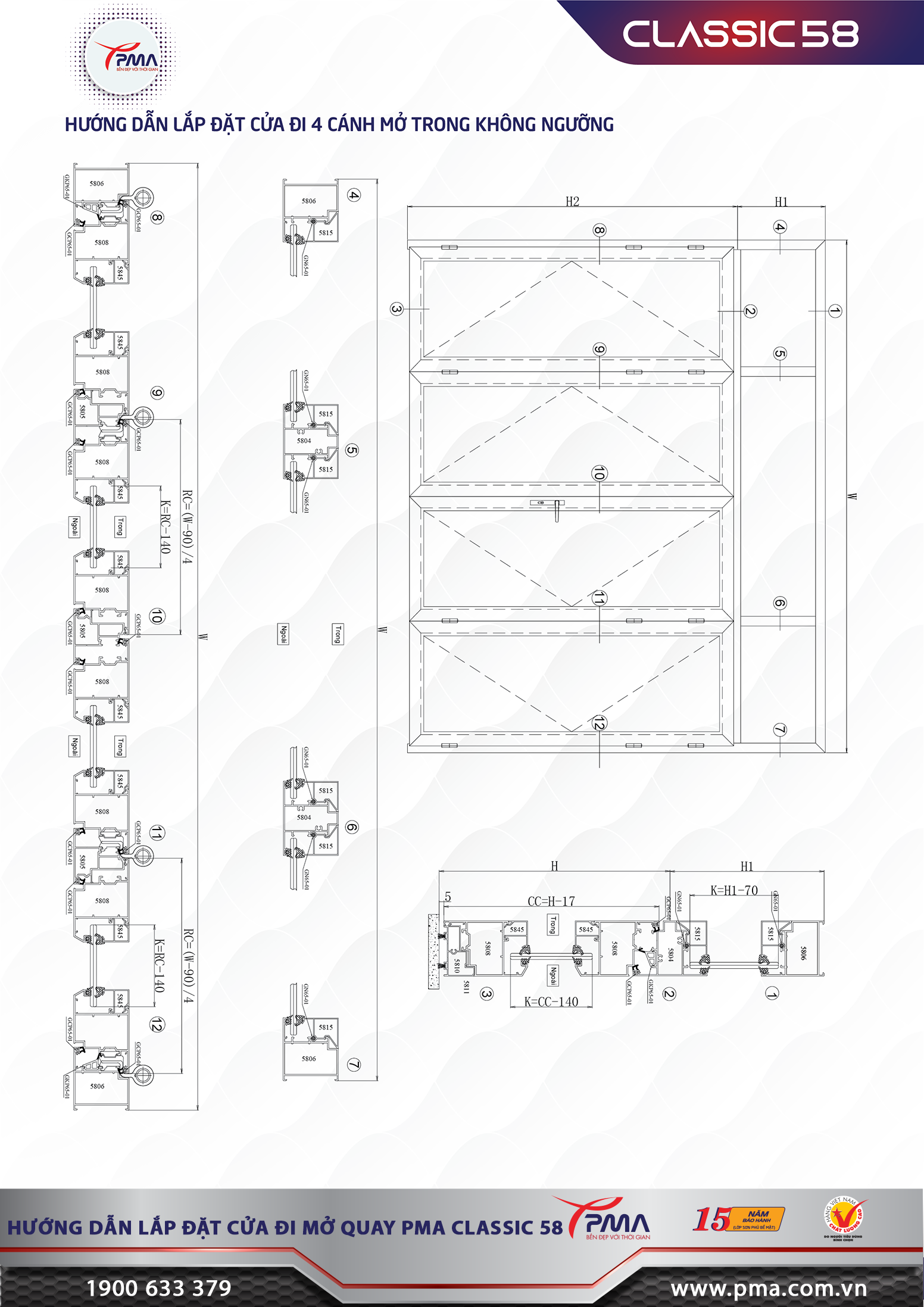
Lắp được từ 1, 2, 4 cánh có thể tùy biến kết hợp vách kính, ô kính cố định tạo điểm nhấn. Cửa mở được 100% diện tích ô chờ thích hợp với những vị trí như ban công, mặt tiền, sân vườn, bể bơi.
Sử dụng gioăng EPDM gốc cao su tự nhiên cách âm, cách nhiệt và vận hành êm ái.
Được thiết kế gioăng trung gian tăng khả năng cách âm tuyệt đối cho mỗi công trình khi sử dụng Lớp sơn phủ bề mặt AkzoNobel tạo màng sơn chắc khỏe, chống chịu mọi môi trường thời tiết, bảo hành 15 năm.
Cửa đi mở quay PMA Classic 58 sử dụng khuôn bao 58mm và có 2 giải pháp bản cánh 88mm và 105mm thích hợp cho các lựa chọn của gia chủ và chủ đầu tư.
Quá trình sản xuất và lắp đặt có thể sử dụng kính đơn, kính cường lực hoặc kính hộp theo nhu cầu của từng gia chủ.
3. Ưu điểm nổi bật của Cửa đi mở quay PMA Classic 58
3.1 Cách âm & cách nhiệt
Cửa đi mở quay PMA hệ Classic 58 có cấu trúc dạng hộp chia thành nhiều khoang trống kết hợp với hệ gioăng EPDM và hệ phụ kiện kim khí đồng bộ đã tạo nên sản phẩm có khả năng cách âm tốt, cách nhiệt cao. Công nghệ ghép góc tiên tiến bậc nhất hiện nay đảm bảo cửa cứng vững, cách âm, cách nhiệt cùng độ kín, khít cao.
3.2 Kín nước & kín khí
Các ống dẫn nước hướng ra ngoài được thiết kế trên khung cửa sẽ ngăn nước chảy vào bên trong một cách tối đa. Sự kín khít tuyệt đối cản trở việc lưu thông không khí lạnh ở trong và nóng ở ngoài góp phần tiết kiệm chi phí điện cho điều hòa.
3.3 Chịu áp lực gió
Cửa đi mở quay PMA hệ Classic 58 rãnh C tiêu chuẩn châu Âu sử dụng khóa đa điểm và bản lề cối mở quay giúp tránh được nguy cơ gió đập. Sản phẩm chịu được áp lực gió lên đến 2000 pascal, đủ điều kiện đảm bảo an toàn cho những công trình nằm tại khu vực nhiều gió bão.
3.4 Hiệu quả kinh tế
Việc sử dụng cửa đi mở quay PMA hệ Classic 58 được xem là giải pháp tốt nhất trong việc tiết kiệm năng lượng cho các tòa nhà cao tầng có nhiều mặt tiếp xúc trực tiếp với ánh nắng mặt trời.
Màu sắc đa dạng từ vân gỗ, xám đá, trắng sứ tạo tính thương hiệu, luôn giữ được màu sắc và kết cấu của cửa ngay cả trong điều kiện thời tiết khắc nghiệt, cũng như tác động của môi trường.
Với chất lượng vượt trội, thiết kế ưu việt, Cửa đi mở quay PMA Classic 58 sẽ là giải pháp hoàn hảo bảo vệ cho các công trình xây dựng hiện đại, đáp ứng mọi yêu cầu của khách hàng. Mọi chi tiết quý khách vui lòng liên hệ đến:
































Đánh giá
Chưa có đánh giá nào.