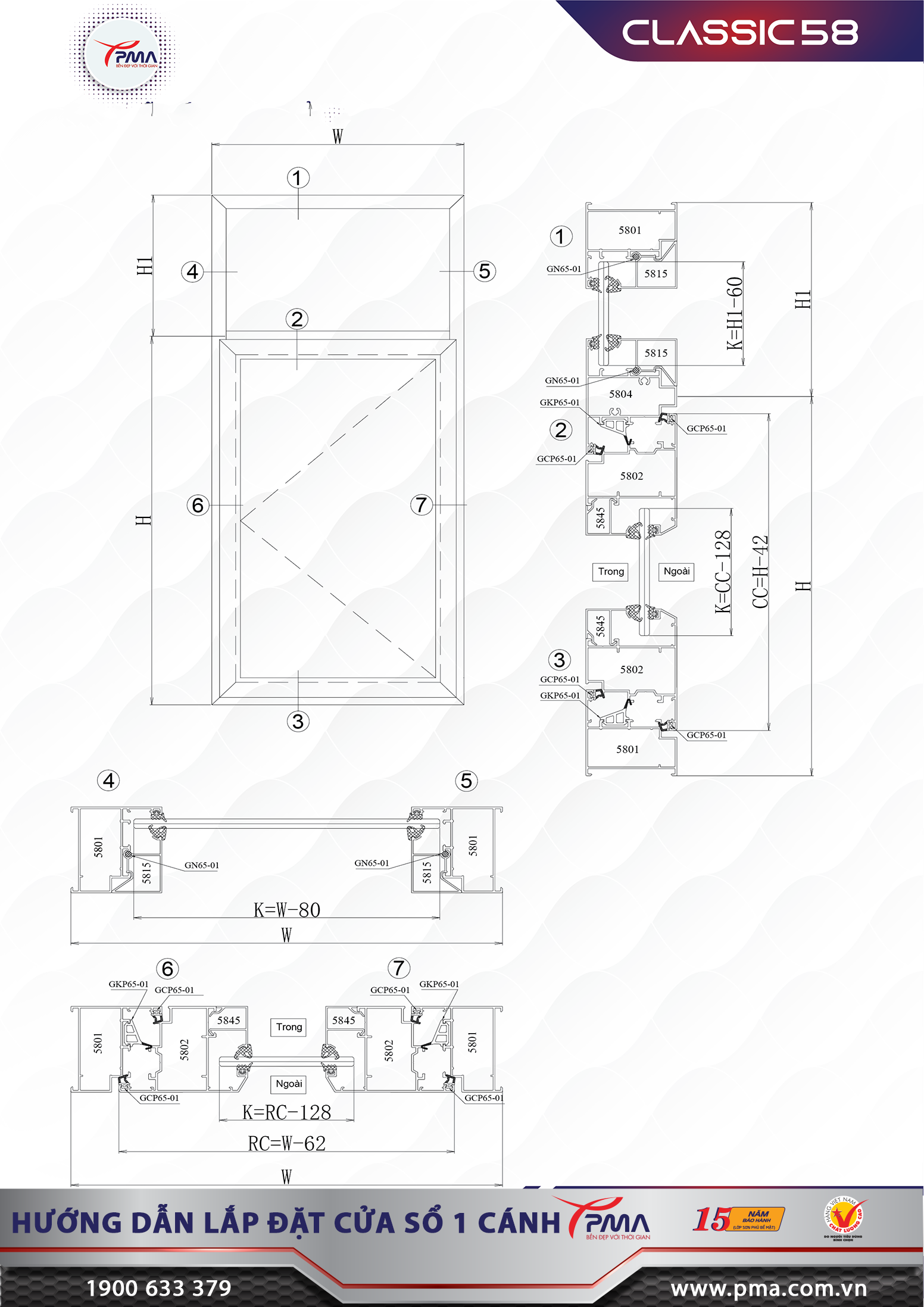
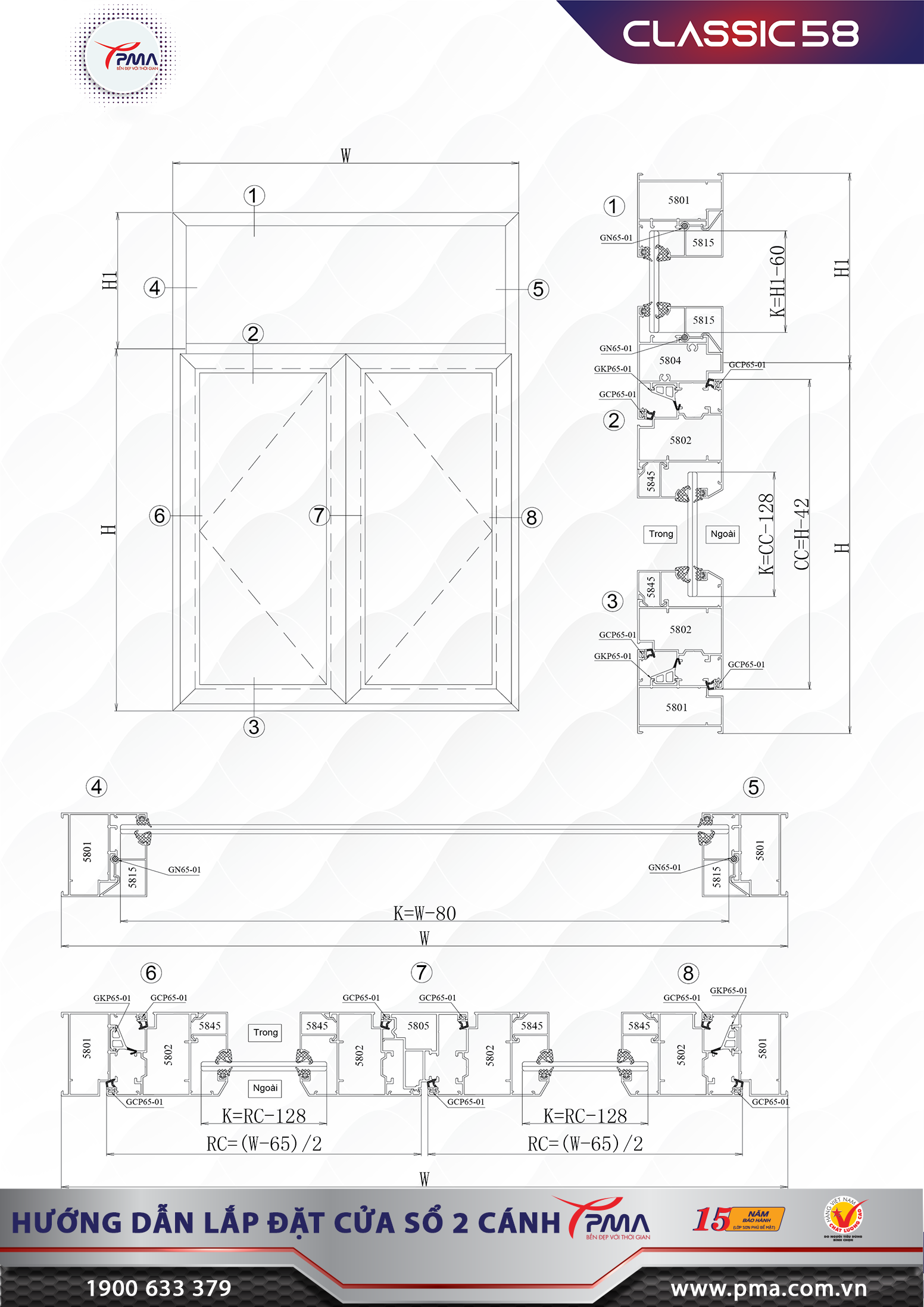
1. Cửa sổ mở quay PMA hệ Classic 58 là gì?
Cửa sổ nhôm hệ rãnh C châu Âu được thiết kết thông minh, với sự kết hợp giữa hệ khuôn bao 58mm kết hợp với bản cánh thông qua hệ thống bản lề ma sát chữ A, giữa khuôn bao và bản cánh được lắp đặt hệ thống gioăng trung gian và gioăng rãnh C.
Chính vì vậy quá trình đóng mở của cửa rất chắc chắn và êm ái, ngoài ra với gioăng trung gian giúp cho bộ cửa kín khít và có khả năng cách âm tuyệt đối.
2. Đặc điểm của Cửa sổ mở quay PMA hệ Classic 58
Cửa sổ mở quay PMA hệ Classic 58 thường có 1, 2, 3 hoặc 4 cánh tùy theo không gian mở của kiến trúc xây dựng căn nhà. có thể lắp đặt bản lề mở quay để tối đa không gian hoặc lắp đặt bản lề Ma sát mở lật và mở quay góc 90 độ.
Nhôm hệ rãnh C Châu âu PMA Classic 58, dễ dàng thi công, tối đa được thời gian lắp đặt đặc biệt là phần lắp đặt bản lề và tay cài hết sức dễ dàng.
3. Ưu điểm của Cửa sổ mở quay PMA hệ Classic 58
3.1 Khả năng cách nhiệt, cách âm tốt
Với kết cấu thiết kế nhôm hệ rãnh C, cửa mở quay PMA hệ Classic 58 giảm khoan, khoét, đảm bảo không phá vỡ kết cấu nhôm. Nhờ vậy, có độ chắc chắn và tuổi thọ cao, khả năng cách âm, cách nhiệt vô cùng tốt. Sử dụng gioăng trung gian tạo cho bộ cửa kín khít và cách âm tuyệt đối so với hệ cửa nhôm khác trên thị trường.
3.2 Tính thẩm mĩ cao
Bề mặt thân cửa sổ mở quay PMA hệ Classic 58 được sơn tĩnh điện cao cấp AkzoNobel được bảo hành bề mặt lên đến 15 năm giúp bảo vệ cửa dưới các tác nhân bên ngoài và dễ dàng vệ sinh với nhiều gam màu thời thượng như vân gỗ, cafe, đen, xám đá, đáp ứng mọi nhu cầu của quý khách hàng sao cho phù hợp với tông màu chủ đạo của công trình.
3.3 Tiết kiệm chi phí
Cửa sổ mở quay PMA hệ Classic 58 được thiết kế hiện đại rãnh C theo tiêu chuẩn châu Âu nên tối ưu vật liệu nhôm hơn so với các loại sập rời, đảm bảo độ bền cao, luôn giữ được màu sắc và kết cấu của cửa ngay cả trong điều kiện thời tiết khắc nghiệt. Bên cạnh đó, cửa sổ mở quay PMA hệ Classic 58 có khả năng đón sáng rất tốt, giúp giảm chi phí điện năng một cách đáng kể.
Lựa chọn và sử dụng cửa sổ mở quay PMA hệ Classic 58 mang lại những ưu điểm tuyệt vời cho người dùng. Hy vọng qua bài viết này của Nhôm PMA, khách hàng sẽ hiểu rõ hơn về hệ những ưu điểm cũng như tiện ích vượt trội mà bộ cửa này mang lại. Mọi thông tin thắc mắc khách hàng vui lòng liên hệ:



























Đánh giá
Chưa có đánh giá nào.