1. Cửa sổ hệ trượt 95 PMA Classic 58 là gì?
Cửa sổ mở trượt hệ 95 PMA Classic 58 hay còn gọi là cửa sổ mở lùa, đây là loại cửa sổ có cánh luôn so le song song với khung, khi mở cửa chạy trên ray nằm trong tạo ra khoảng mở. Thông thường sẽ có từ 1 đến 3 đường ray và có 2 đến 6 cánh giúp tiết kiệm diện tích đồng thời mở rộng không gian, tăng sự thoải mái cho ngôi nhà.
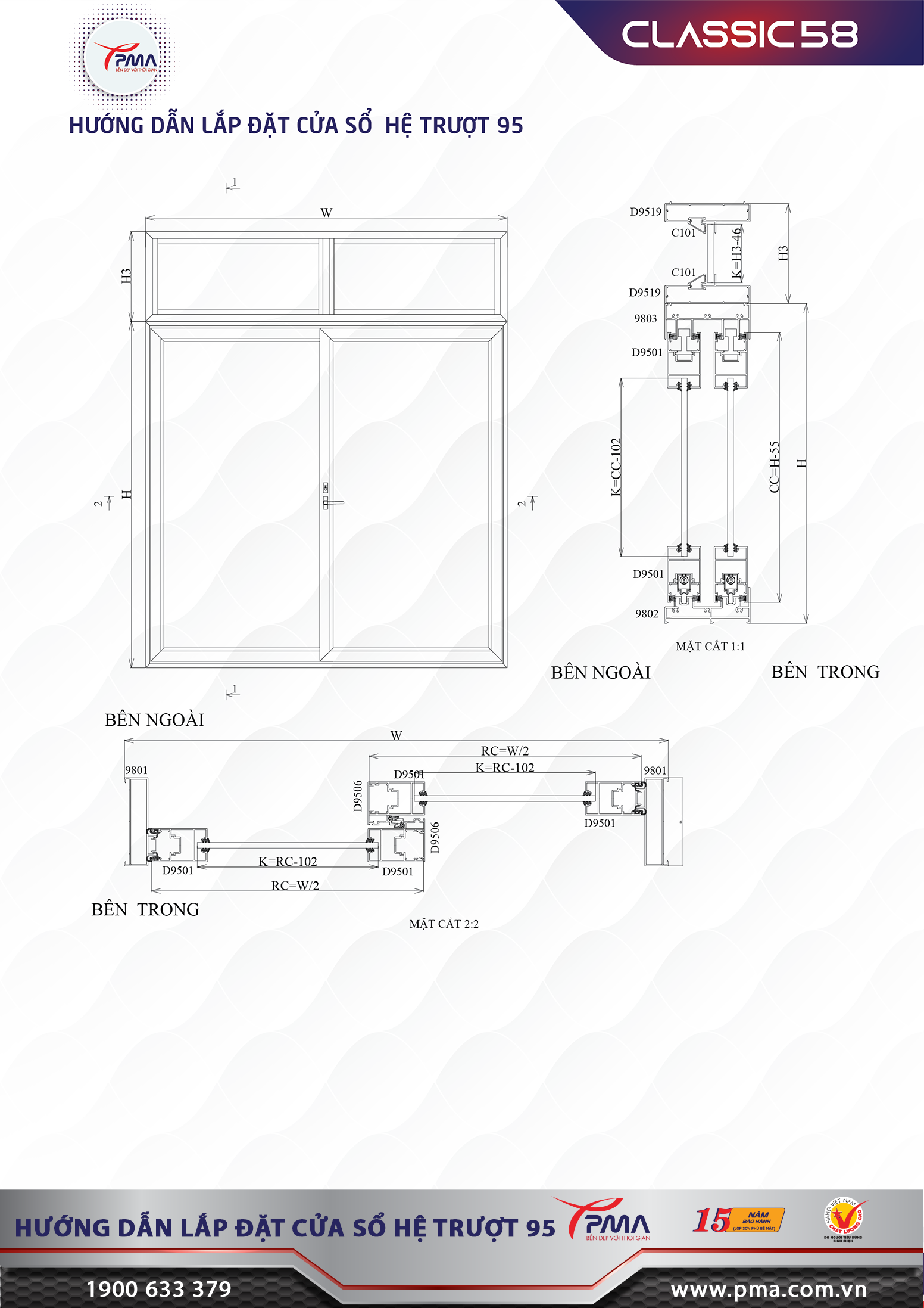
Cửa sổ mở trượt hệ 95 PMA Classic 58 bao gồm các thanh nhôm được thiết kế với bề dày hình hộp lớn nhất là 95mm. Màu chủ đạo: nâu cafe, trắng sứ, ghi, đen,…
Cửa sổ mở trượt hệ 95 PMA Classic 58 vận hành bằng thao tác trượt cánh trên ray. Cửa có thể mở tối đa ½ diện tích khung cửa bằng cách trượt cánh trên ray rất nhẹ nhàng, êm ái.
2. Đặc điểm hệ trượt 95 PMA Classic 58
Cửa sổ mở trượt hệ 95 PMA Classic 58 được thiết kế nguyên khối, không chiếm không gian trong hoặc ngoài nhà khi mở.
Chế tạo từ hệ Profile nhôm định hình từ thương hiệu nhà máy Nhôm PMA được thiết kế với các khoang rỗng tạo sự cách âm cách nhiệt hoàn hảo.
Cửa có thể lắp đặt kính đơn, kính an toàn, kính cường lực, kính hộp kết hợp với nan trang trí giúp tăng tính thẩm mỹ và đảm bảo an toàn cao cho người sử dụng. Hộp kính được bơm khí trợ giúp tăng khả năng chống ồn, cách nhiệt, tiết kiệm điện.
Chịu rung, chịu nén và chịu lực va đập tốt, độ an toàn cao, tránh được nguy cơ gió đập.
Bề mặt được phun sơn tĩnh điện đến từ hãng AkzoNobel có bảo hành bề mặt lên đến 15 năm giúp cửa luôn giữ được sự tươi mới.
Tính ứng dụng cao khi phù hợp cho việc sử dụng tại các toà nhà cao tầng và các công trình dân dụng.
3. Ưu điểm của cửa sổ mở trượt hệ 95 PMA Classic 58
3.1 Tiện lợi, dễ sử dụng
Cửa sổ mở trượt hệ 95 PMA Classic 58 có khả năng đóng mở cửa nhẹ nhàng, không gây tiếng ồn, không tốn sức do có bánh xe và thanh dẫn giúp cửa được vận hành một cách nhẹ nhàng và êm ái.
3.2 Cách âm, cách nhiệt và hạn chế bụi bẩn
Cửa sổ mở trượt hệ 95 PMA Classic 58 sử dụng các thanh nhôm profile thương hiệu PMA chính hãng, kết hợp cùng các loại kính tốt giúp hạn chế tiếng ồn. Có khả năng chắn bụi bẩn rất tốt do kết cấu các gioăng EPDM làm từ chất liệu cao cấp, có độ kín khít tuyệt đối.
3.3 Độ bền cao, dễ dàng vệ sinh
Cửa sổ mở trượt hệ 95 PMA Classic 58 với các khoang rỗng và gân tăng cứng, chiều dày nhôm, các rãnh, vách kỹ thuật được tính toán kỹ lưỡng để tạo sống gia cường, đảm bảo khả năng đứng vững ngay cả trong điều kiện thời tiết gió, bão, động đất. Bên cạnh đó, thanh profile với thiết kế cải tiến, có khe thoát nước mưa giúp tăng khả năng chống nước.
3.4 Tiết kiệm diện tích cho không gian
Với những căn nhà có diện tích nhỏ, việc không gian bị hạn chế khi mở cửa có thể xảy ra. Nhưng với kiểu cửa sổ mở trượt hệ 95 PMA Classic 58 phần không gian sẽ được tiết kiệm. Cửa trượt nằm trên bức tường mà không hề ảnh hưởng tới diện tích xung quanh.
Với chất lượng vượt trội, thiết kế ưu việt, cửa sổ mở trượt hệ 95 PMA Classic 58 sẽ là giải pháp hoàn hảo bảo vệ cho các công trình xây dựng hiện đại, đáp ứng mọi yêu cầu của khách hàng. Mọi chi tiết quý khách vui lòng liên hệ đến:



























Đánh giá
Chưa có đánh giá nào.