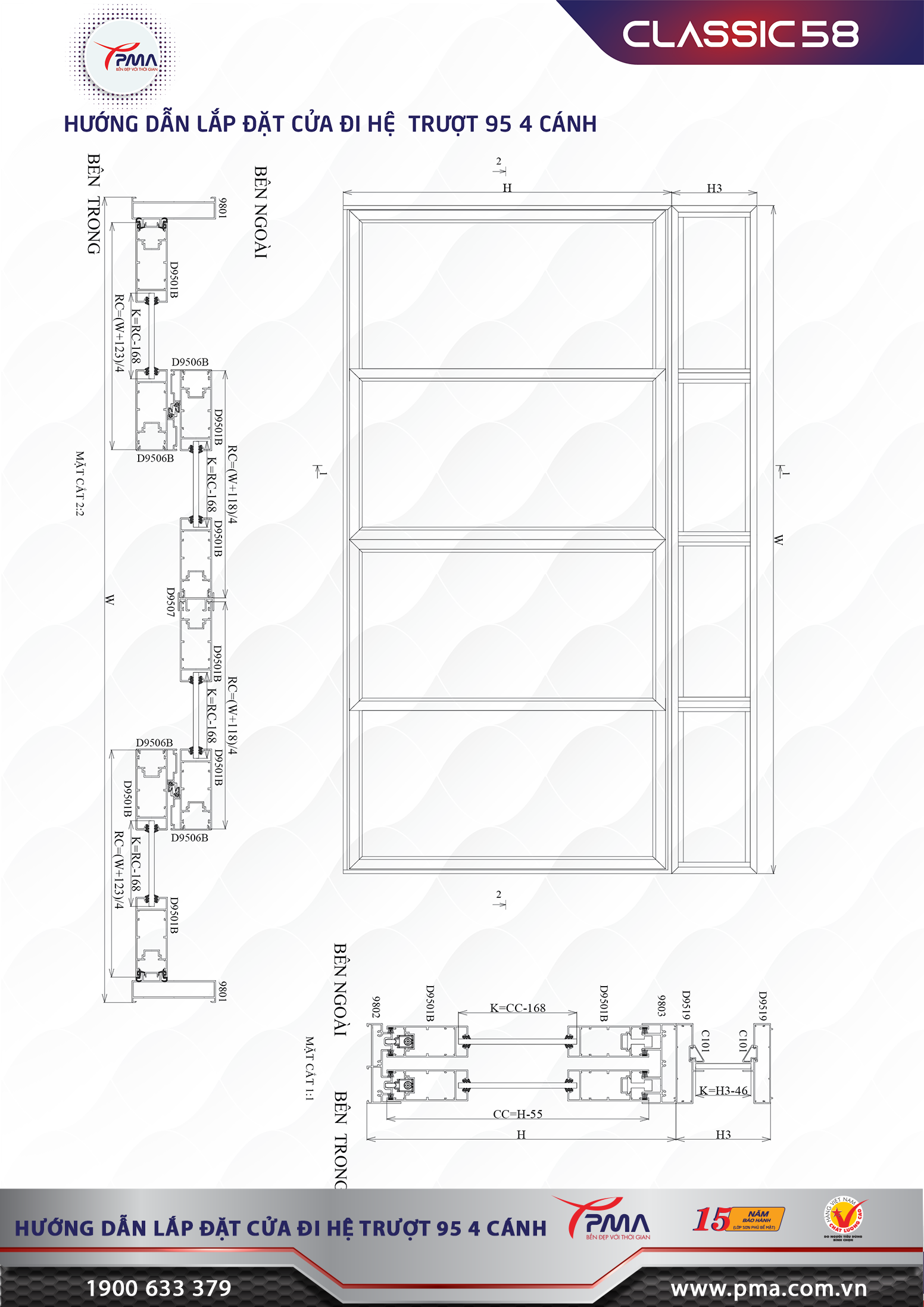
1. Cửa đi mở trượt hệ 95 PMA Classic 58 là gì?
Cửa trượt hệ 95 PMA Classic 58 hay còn gọi là cửa lùa, được lắp đặt vận hành trên hệ thống ray trên và ray dưới, ray dưới được lắp đặt bánh xe dẫn hướng và chịu lực, ray trên được lắp bánh xe và phụ kiện của trượt. Thường sử dụng ray 2 hoặc ray 3 và có thể lắp từ 2 đến 4 hoặc nhiều hơn theo số chẵn, tùy vào không gian và lựa chọn giải pháp lắp đặt.
2. Đặc điểm của Cửa đi mở trượt hệ 95 PMA Classic 58
Cửa trượt hệ 95 PMA Classic 58 rãnh C tiêu chuẩn châu Âu được thiết kế tối giản hệ mặt cắt thanh nhôm định hình, có cấu trúc dạng hộp, chia thành nhiều khoang trống. Với hệ ray dưới được sử dụng ray inox luôn đảm bảo chắc chắn, hệ thống phụ kiện sử dụng bánh xe chống nhấc và chống rung, giúp cho bộ cửa được vận hành êm ái, mượt mà. Cửa trượt hệ 95 PMA Classic 58 thường sử dụng cho các bộ cửa chính, cửa ra ban công.
3. Ưu điểm của Cửa đi mở trượt hệ 95 PMA Classic 58
3.1 Cách âm, cách nhiệt
Cửa và vách được cấu tạo từ thanh hợp kim nhôm hệ 95 PMA Classic 58 có cấu trúc dạng hộp chia thành nhiều khoang trống kết hợp với hệ gioăng và hệ phụ kiện kim khí đồng bộ đã tạo nên sản phẩm có khả năng cách âm tốt, cách nhiệt cao.
Công nghệ ghép góc tiên tiến bậc nhất hiện nay đảm bảo cửa cứng vững, cách âm, cách nhiệt cùng độ kín, khít cao.
3.2 Kín nước & Kín khí
Các ống dẫn nước hướng ra ngoài được thiết kế trên khung cửa sẽ ngăn nước chẩy vào bên trong một cách tối đa.
Sự kín khít tuyệt đối cản trở việc lưu thông không khí lạnh ở trong và nóng ở ngoài góp phần tiết kiệm chi phí điện cho điều hoà.
3.3 Chịu áp lực gió
Cửa đi mở trượt hệ 95 PMA Classic 58 có độ an toàn cao, tránh được nguy cơ gió dập.
Sản phẩm chịu được áp lực gió lên đến 1600 pascal, đủ điều kiện đảm bảo an toàn cho những công trình nằm tại khu vực nhiều gió bão.
3.4 Hiệu quả kinh tế
Việc sử dụng cửa hợp kim, vách nhôm và hộp kính là giải pháp tốt nhất trong việc tiết kiệm năng lượng cho các toà nhà cao tầng có nhiều mặt tiếp xúc trực tiếp với ánh nắng mặt trời.
Thanh nhôm được xử lý bề mặt và sơn tĩnh điện với công nghệ tiên tiến của hãng sơn AkzoNobel bảo hành bề mặt 15 năm cho độ bền cao, luôn giữ được màu sắc và kết cấu của cửa ngay cả trong điều kiện thời tiết khắc nghiệt ở Việt Nam.
3.5 An toàn và thuận tiện
Có độ cứng cao giúp tăng khả năng chịu lực, đảm bảo an toàn cho ngôi nhà.
Cửa đi mở trượt hệ 95 PMA Classic 58 cho phép làm cửa có kích thước lớn. Giúp mở rộng không gian và tạo được tầm nhìn bao quát cho công trình.
Đóng mở dễ dàng, đảm bảo diện tích sử dụng tối đa cho căn phòng.
Đa dạng kích thước, kiểu dáng, phù hợp với nhiều kiểu kiến trúc. Giúp mang lại vẻ đẹp hiện đại và sang trọng.
Sử dụng cửa trượt 95 PMA Classic 58 với độ bền trong nhiều năm nên sẽ là giải pháp tốt nhất để tiết kiệm chi phí cho xây dựng cho ngôi nhà.
Ngoài ra, cửa trượt 95 PMA Classic 58 thuận tiện trong việc thi công và lắp đặt an toàn, chắc chắn mang đến 1 hệ thống cửa hoàn hảo cả về tính thẩm mỹ và độ bền theo thời gian. Để được giải đáp mọi thắc mắc, quý khách xin vui lòng liên hệ đến:

































Đánh giá
Chưa có đánh giá nào.